Home
About
Visit
Ministries
Media
Resources
Contact
Events
Give
Home
About
Visit
Ministries
Media
Resources
Contact
Events
Give
toggle menu
Building Expansion
SOLI DEO GLORIA
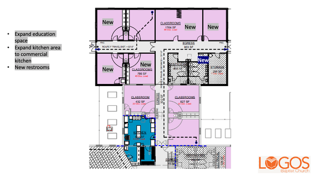
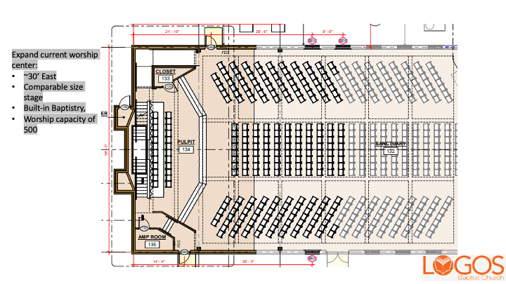
BUILDING EXPANSION PROJECT WILL INCLUDE...
Worship Center - new capacity to seat 500 people
New Educational Building
Classrooms
Additional Restrooms
Storage
New Kitchen Facility
60 New Parking Spaces